Ideate Annotate and Other IdeateApps Updates for Revit 2023

A few months ago, Ideate Software, a leading Autodesk Authorized Developer that develops a range of plugin tools for Revit, released a set of updates to its IdeateApps suite of tools to include support for the latest version of Revit that was released in April. The tools were also updated for earlier versions of Revit including 2020, 2021, and 2022.

IdeateApps is a collection of Revit-specific tools designed to increase the productivity of a project team by automating the tasks that Revit users perform every day (Figure 1). In addition to reducing the time spent on common Revit tasks, they are also aimed at increasing the accuracy of the BIM data in a Revit model. These tools are continuously improved and updated to correspond to the latest version of Revit and are based upon user requests and input. They can be used across all the different disciplines of Revit, including Architecture, Structure, Mechanical, Electrical, and Plumbing.

In addition to improvements to the existing tools, the latest update of IdeateApps that was released in June includes a new tool, Ideate Annotate, which is aimed at improving design documentation and quality control activities through enhanced browse and review workflows. I learnt more about it at a webinar last week, along with the key updates made to the other tools within the IdeateApps collection.

Ideate Annotate

As shown in Figure 1, Ideate Annotate is the latest tool in the IdeateApps collection. Its main functionality is to ensure the legibility of tags, dimensions, and other 2D annotation elements by reviewing clashes and highlighting any issues that need to be fixed (Figure 2). It also allows the user to browse through all the annotation elements that have been placed in a project to better understand their usage.

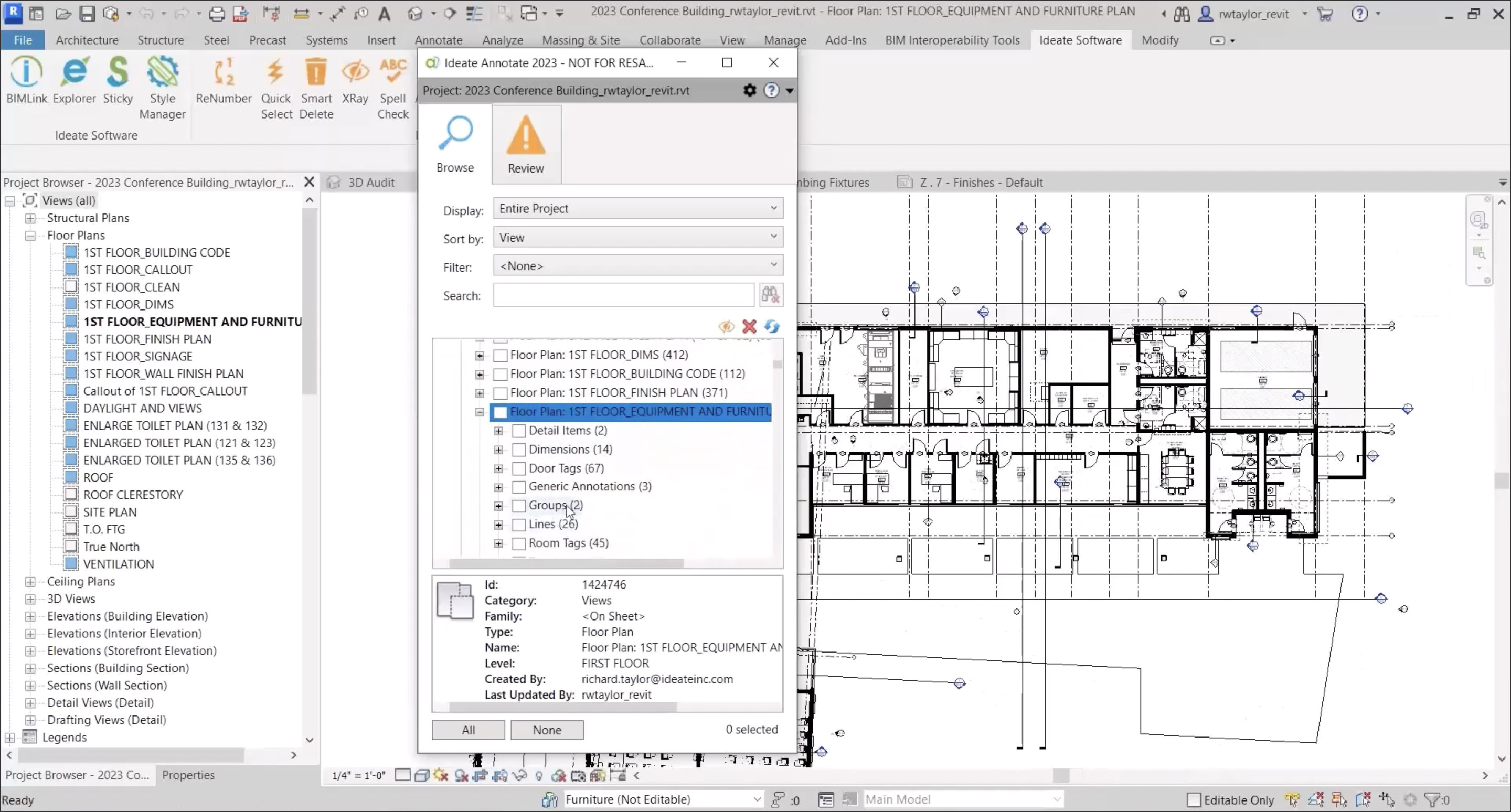
Launching the tool opens the dialog shown in Figure 3, with the Browse tab active. Here, you can see all the annotation elements in the entire project or on a specific view or sheet. The choice is made in the Display drop-down menu. In addition to the different types of annotation elements such as door tags, room tags, elevation markers, etc., you can also see the total count of each annotation type. In the example below, the total count of all the annotation elements in the project is close to 29,000.

You can drill down into the specifics of this complete listing by using the Filter option. Figure 4 shows the Filter set to Tags, which refreshes the display to only show annotations such as door tags, ceiling tags, etc.

An alternate way of looking at the same display is by using the Sort By option. Figure 5 shows the display with the Sort By option changed to View instead of Category. You can now look at the annotation tag elements in different views and navigate to a specific view to explore the tags on it in more detail.

To see all the annotation elements in a specific view, you can simply remove the Filter setting (Figure 6).

You can now drill further down into the list to see a specific annotation element, which you can zoom to in the model by double-clicking on it. You can also select it by checking the box next to it if you want to work with it (Figure 7).

Another useful functionality of Ideate Annotate is to find tags that are hidden. Figure 8 shows how you can navigate to a hidden tag — these are indicated by being displayed in italics — and then choose to make it visible.

So far, we have been working with the Browse feature of Ideate Annotate. To check if there are any clashes or other issues with the annotations in the project, you would switch to the Review tab. This will show a list of all the issues detected in the current view, sheet, or project. In the example shown in Figure 9, there were a total of 113 issues detected in the active view.

To get a better idea of what is causing these issues, you can drill down into the list. Figure 10 shows an example of an issue caused by overlapping tags, which you can see in the model by double-clicking on the elements. You can proceed to fix the issue by repositioning the tags. If you now refresh the list of issues, this one will no longer be on it since it has been resolved.

Some examples of other kinds of issues that can be detected in the Review mode of Ideate Annotate include zero-length dimensions that may be created because of re-sizing or re-positioning elements (Figure 11), blank tags (Figure 12), and hidden tags (Figure 13). For hidden tags, an integration with Ideate XRay, another IdeateApps tool, shows the possible reasons why the tag is not visible and provides the option of fixing the issue.



Additional capabilities of Ideate Annotate include the ability to dismiss issues that are detected but not required to be fixed, the ability to review all dismissed issues, and the ability to set the sensitivity level for annotation clashes which will determine how close the annotations have to be before they are flagged as issues (Figure 14).

Other IdeateApps Updates

In addition to finding a hidden annotation tag in Ideate Annotate by using its integration with Ideate XRay to determine why it is not being displayed as shown in Figure 13 earlier, Ideate XRay also provides the option to search for other hidden elements in the model. It offers multiple methods of identifying the hidden element, as shown in the top image of Figure 15, and once a method is executed — for example, by drawing a selection box to indicate the area that should be searched — the list of all the hidden elements that are detected within that bounding area is displayed, as shown in the lower image of Figure 15.

You can now select any of the hidden elements in the list and find out why it is not visible. In the example shown in Figure 16, it required all three of the reasons shown to be fixed in order for the selected element to finally become visible.

Another update in the IdeateApps collection is the ability to create new views in Ideate ViewCreator based on rooms. ViewCreator is a tool that allows you to batch-create multiple Revit views based on smart rules that have been created to comply with your company’s standards, including the required scale, hatching, shading, text and dimension styles, title block template, etc. The newest update to ViewCreator makes it possible to create a sheet with the interior elevations of a room in one step, after you have selected the rule for the sheet layout. The generation of the new views and their placement on the new sheet happens simultaneously (Figure 17).

And finally, there is an update in the Clone tool, which allows you to automate the process of copying a sheet in Revit with views, and matching the title block family, any title block parameters, sheet parameters, and project browser file location. You can now swap viewports while creating the clone of a sheet, as shown in Figure 18. A related enhancement is that if some modifications are made to the original sheet views, they can be replicated in the cloned sheet using the Align tool (Figure 19).


Conclusion

As Revit continues to be expanded with new functionality in every release, so does the increase in its complexity, which makes plug-in tools like those developed by Ideate Software an essential part of a Revit user’s toolkit. In particular, the IdeateApps collection of tools, with their ability to automate so many of the mundane tasks that Revit users need to do every day, would not only save time but also minimize the tedium of having to do the same repetitive tasks day in and day out. If the eventual goal of the technology is to reduce mind-numbing tasks as much as possible, IdeateApps has certainly succeeded.

About the Author

Lachmi Khemlani is founder and editor of AECbytes. She has a Ph.D. in Architecture from UC Berkeley, specializing in intelligent building modeling, and consults and writes on AEC technology. She can be reached at lachmi@aecbytes.com.

AECbytes content should not be reproduced on any other website, blog, print publication, or newsletter without permission.

Related Articles

Revittools: Data Management and Exchange Tool for Autodesk Revit

Revittools is a plugin that provides a visual portal to Autodesk Revit with the functionality to search, link, tag, colorcode and report on information stored in Revit models and linked external databases, as well as the ability to add new construction and maintenance data captured on-site.

What's New in Revit 2023

Revit expert Dan Stine provides a detailed overview of the new features in the just-released Revit 2023, including duplicate material and assets, improved energy analysis model creation, performance enhancements, structural analytical model overhaul, IFC parameters, new MEP categories, and many more.

ENVIRONMENT for Revit: Extending BIM to Landscape Architecture

This review looks at Environment, a plug-in to Revit that extends its capabilities for site and landscape design, with tools for modeling terrain from scratch, visualizing and analyzing topography, creating outdoor walls and railings quickly along sloped surfaces, and other useful tasks for landscape architecture.

Layer: Capturing and Organizing Building Data

Layer is a new AEC application that was launched close to six months ago to address what seems to be an obvious need in the industry—organizing and integrating the vast amount of disparate data that is typically collected on site during the retrofit or construction of a building project.